CONVERSION OF LISTED MASS-WALL BUILDING, BERLIN
The refugee lodging in the center of Berlin was built through a private initiative.
Status | Type of residents |
Number of residents | Modular units |
Construction costs (Euro/m²) | Building method |
Building (Detail) | Country |
Living space per person (m²/person) | Architect |
Commissioned by | Construction firm |
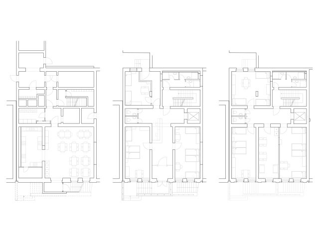
The Haus Märkisches Ufer is a privately initiated shelter for lodging refugees. What makes this project unusual is how it uses an existing historical building, as well as its excellent central location in Berlin-Mitte, directly on the water, with a view of Berlin’s Fernsehturm (TV tower) and the new City Palace. Also unusual is the high degree of creative ambition applied to the project’s interior—above all in the community areas.
What has emerged is a place where people can arrive home to children playing in the halls and the smell of good food. Because of the low occupancy, residents can identify with the building, fostering the emergence of a community.
We have accompanied the project through all its phases: from the various use studies, the lengthy and protracted approval process in a landmark-protected building, to the execution of the building, all the way to the complete furnishing and installation of amenities.
(Excerpt from project decription)



