Refugee Residence, Hanover
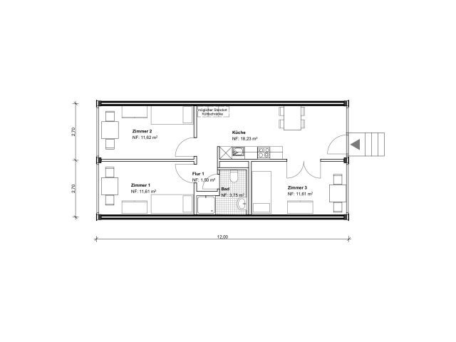
The wooden modules were prefabricated in Vorarlberg. Combining two elements results in a 3-room apartment with a shared kitchen. The aim is for the building to be used later as a dormitory.
Status | Type of residents |
Number of residents | Modular units |
Construction costs (Euro/m²) | Building method |
Building (Detail) | Country |
Living space per person (m²/person) | Architect |
Commissioned by | Construction firm |
Kaufmann Bausysteme, a modular building giant based in Vorarlberg, has been in the prefabrication business for countless years. Its commitment in Hanover is attributable to a pan-European invitation for tender in May 2015 in which the company underbid the competition. The local office of Mosaik Architects has planned three housing complexes with wooden modules at various different sites in Hanover. Proposed for long-term use, in addition to being quickly built, the living units should also conform to ecological and urban planning standards. According to architect Kay Marlow, the Linden district, where the first complex is to be completed by the end of December, is Hanover’s Prenzlauer Berg, where the refugees are being welcomed with open arms.
The architects’ plans call for 96 single rooms in three two-storey buildings grouped around a courtyard with a community house, sport and recreation areas. At present the rooms are double-occupied by refugees, but in the long term students and families with low income will be accommodated here. The floor plans dispense with hallways: the dwelling units are accessed through the kitchen. Three or five rooms can be connected to form a unit with one or two baths. For this purpose a double door was factory-installed in the room adjoining the kitchen/living room. The complex is modelled on the Danish Tinggården housing developments to the south of Copenhagen dating back to 1978, with their striking individual staircases leading from the first floor apartments directly to the garden. In Hanover the garden stairs had to be omitted in favour of a second escape route; instead, a wide access gallery connects the upper units.
At 2.7 by 12 metres the dwelling units correspond to the maximum truck haulage dimensions. All the modules – including installations, heating, bath, kitchen and façade panels – were made at the factory and set on strip footings in Hanover. Only the access balconies, steel stairways and outer wood panelling were assembled at the site. The massive timber construction is made of plywood conforming to EnEV. The quality of living promises to be significantly higher than in steel containers, alone due to the wood-faced inside walls. Parallel building modules of steel were prescribed for the construction in Steigerthalstraße, and these proved to be significantly more expensive. Eight months lapsed between the opening day of tenders and completion. Construction of the second refugee accommodation with 150 rooms in Dorotheenstraße started in January. Here the wooden modules are to be stacked in three layers.
The City of Hanover, which in the past year took in 4,000 refugees, has opted for a “Three pillar model” with dormitories, housing projects and apartments. In 2016 Hanover is expecting 300 further refugees per month; 16 locations for modular structures and 13 residential projects with “contingents” for refugees are at the planning stage. Following an amendment of the Building Code in November 2015, construction is to be permitted on sites for which no land-use plan exists.
Text: Doris Kleilein
Aus: Stadtbauwelt 48.2015
Photo 1, 3, 4, 5, 6, 7:: © Olaf Mahlstedt, Hannover (www.olafmahlstedt.de) - Images may only be published by agreement with the author and the architect/ Photo 2: © MOSAIK Architekten BDA









