MAGDAS HOTEL, Vienna (A)
Refugees, who aren't housed in the hotel may work here at the reception desk, in the kitchen, or on the service staff.
Winner of Berlin Award 2016 Heimat in der Fremde
Status | Type of residents |
Number of residents | Building method |
Building (Detail) | Country |
Living space per person (m²/person) | Architect |
Commissioned by | Construction firm |
Social entrepreneurship
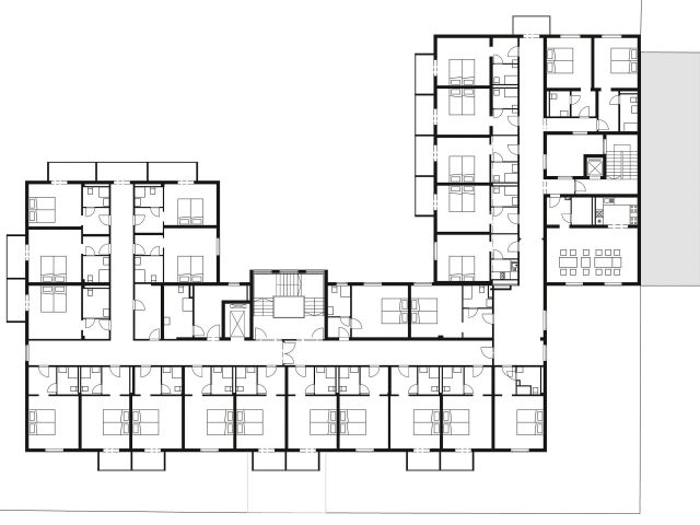
Bringing hotel guests together with refugees under one roof: since the “Grand Hotel Cosmopolis” in Augsburg this has almost become a proven concept. In a further example in Vienna, Caritas has converted a run-down retirement home to a hotel, albeit with another focus: the declared goal was to introduce refugees to paid work. For an interim period of five years Caritas offered asylum seekers the opportunity to work legally at the reception, in the kitchen or in service. Of the 30 employees 20 are immigrants from 16 nations. However, they do not live in the hotel, only in the west wing of the building, which has its own entrance and is used as shared accommodation for about 25 under-age, unaccompanied refugees.
The former pensioners’ home “Haus Josef Macho” occupies a central location not far from the Vienna Prater. Up until 2014 twelve senior citizens still occupied the building in Konzept.
Social entrepreneurship
Bringing hotel guests together with refugees under one roof: since the “Grand Hotel Cosmopolis” in Augsburg this has almost become a proven concept. In a further example in Vienna, Caritas has converted a run-down retirement home to a hotel, albeit with another focus: the declared goal was to introduce refugees to paid work. For an interim period of five years Caritas offered asylum seekers the opportunity to work legally at the reception, in the kitchen or in service. Of the 30 employees 20 are immigrants from 16 nations. However, they do not live in the hotel, only in the west wing of the building, which has its own entrance and is used as shared accommodation for about 25 under-age, unaccompanied refugees.
The former pensioners’ home “Haus Josef Macho” occupies a central location not far from the Vienna Prater. Up until 2014 twelve senior citizens still occupied the building in Laufbergergasse. They were able to relocate to a new building close by. Architects’ office AllesWirdGut was commissioned with the conversion of the dilapidated property from the 1960s. The limited budget of € 1.55 million was used predominantly for renewal of the technical installations and rising mains. Fire prevention measures were a further major cost. The façades remained untouched; the garden was designed as a café with a wooden terrace. In the former dining room on the ground floor the architects installed a restaurant, lobby, bar and library.
There are 78 rooms in the hotel, two thirds of which have a loggia. For the furniture and equipment the architects launched a crowdfunding campaign which raised € 57,000 for the purchase of beds, blankets, mattresses and dishes. Furniture was selected from the Caritas warehouses and renovated; armchairs and cupboards from the old people’s home were refurbished by designer Daniel Büchel. For reasons of expense the existing plastic windows and the baths had to be retained; only broken tiles were replaced. This hotel distinguishes itself from other shabby-chic hotels by the “social dimension of vintage”, as the architects call it. There can be no doubt that the recruitment of an internationally renowned architectural office by a non-profit organisation such as Caritas was instrumental in helping a locally celebrated hotel to become a “social business” in only a matter of months.
Text: Doris Kleilein
from: Stadtbauwelt48.2015




