Container Villages, Bremen
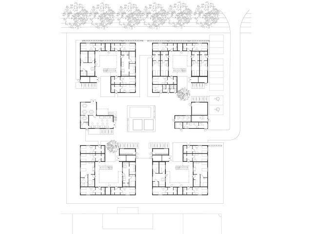
Using larger containers, each 3 meters wide, allows the design to accommodate more flexible floor plans. The modules are connected in clusters, some of which form small courtyards.
Status | Type of residents |
Number of residents | Modular units |
Construction costs (Euro/m²) | Building method |
Building (Detail) | Country |
Living space per person (m²/person) | Architect |
Commissioned by | Construction firm |
The temporary homes were constructed on municipal land and approved for five years. An employee from the Muslim community sensitised the planning architects to the residents. The outcome was living units of 24 m2 for two persons and 48 m2 for four persons, each with bath and kitchen. A maximum of 16 persons live on one level and are self-sufficient. The architects decided against communal showers, as they can lead to problems, especially with Muslim women. Some residents failed to turn off the taps because they found the noise of running water to be soothing, and for this reason water-stop valves had to be installed. The arrangement of the courtyard houses accommodates the need for peace and privacy, creating a layered system of private, semi-private and public areas. The complex has 24-hour security.
“The Bremen examples also show that once these people have spent a few months in temporary housing they are reluctant to move.” Architect Tobias Kister, who planned the container complexes, concludes: “We must create sustainable, higher-quality and durable residential complexes. It is not the residents who move on, but the social workers and managers who are no longer needed.” Kister is currently planning a housing complex made of wood. “A container is not suitable for permanent living,” he says.
Text: Friederike Meyer
from: Stadtbauwelt 48.2015







